Cargando contenido…

Recientemente registrados Recientemente actualizados
Portada Mariela Mangona

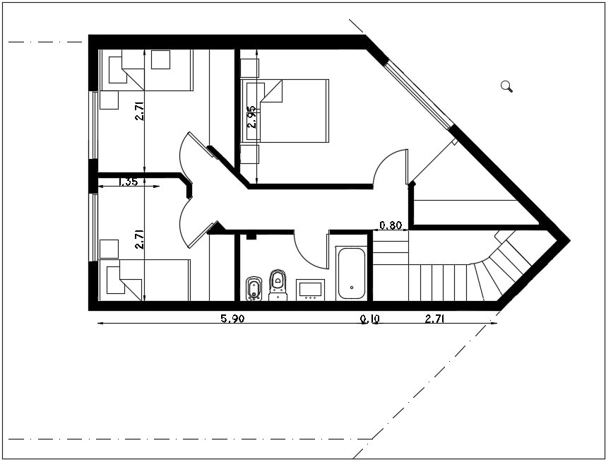
Anteproyecto Calle Roma Casilda

Vivienda unifamiliar en Barrio Roma, Casilda.

 Proyecto resuelto a partir de un terreno de geometría irregular, donde la propuesta arquitectónica se adapta a sus condiciones particulares, optimizando al máximo el uso del suelo y la organización de los espacios.

La vivienda se estructura mediante una disposición clara y funcional,...
Imagen del perfil
Imagen del perfil
Mariela Mangona

Mariela Mangona

Matrícula Capsf N° 03546

Arquitecta | Certificadora de Eficiencia Energética de Viviendas Inscripta N° 028-0

ARQUITECTURA RESIDENCIAL / ARQUITECTURA SUSTENTABLE / ARQUITECTURA COMERCIAL / Contemporáneo / Certificados de habilitación / Documentación y regularización / Etiquetado energético / Finales de obra / Gestiones ante distintos entes / Informes técnicos / Patologías y medianería / Pericias y tasaciones / Permisos municipales / Diseño / Proyecto / Planos

Rosario, Roldán, Funes

Nombre y puesto:
Arquitecta matriculada | Certificadora habilitada
Provincia de Santa Fe | Alcance nacional
Area:
Eficiencia Energética.
 
Descripcion:
Certificación de Eficiencia Energética de Viviendas

Mi experiencia

  • - Dec 2025

    Nombre y puesto:
    Arquitecta matriculada | Certificadora habilitada
    Provincia de Santa Fe | Alcance nacional
    Area:
    Eficiencia Energética
    Descripcion:
    Certificación de Eficiencia Energética de Viviendas
    - Diagnóstico del comportamiento energético de la vivienda | etiquetado oficial | información clara para tomar decisiones antes de comprar | vender | reformar una vivienda.
    - Evaluación orientada a mejorar confort térmico | reducir consumo energético | valorizar el inmueble
  • Jan 1998 - Dec 2025

    - Experiencia profesional en proyecto y dirección de obra de viviendas unifamiliares | desarrollo de reformas | relevamientos técnicos y evaluaciones de inmuebles.
    - Más de 20 años de ejercicio profesional | gestión integral del proceso proyectual | acompañamiento al cliente desde la etapa de diagnóstico hasta la ejecución.
    - Experiencia en certificación de eficiencia energética de viviendas | diagnósticos energéticos | etiquetado oficial | propuestas de mejora orientadas a confort térmico | ahorro energético | valorización del inmueble.
    - Trabajo con propietarios | compradores | inversores que buscan decisiones técnicas claras | cumplimiento normativo | optimización de recursos.

Hola! Soy Arq. Mariela en que podemos ayudarte?

ABRIR CHAT